发表于:2017.10.23
减速机润滑点分布图同时以铭牌的形式固定于立轴行星搅拌机搅拌筒上,客户应按照下表要求定期对搅拌机减速机进行润滑保养,如果因未按照要求润滑而造成的搅拌机的损坏,我公司概不承担相关责任,相关保修服务终止。

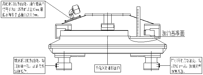
立轴行星式搅拌机减速机润滑点分布图(以实际机型为准)

下图所示为立轴行星式搅拌机的润滑位置及润滑时间和需要的润滑剂:
序号 | 润滑位置 | 润滑时间 | 润滑剂 |
1 | 搅拌机减速器 | 工作100h后第一次换油,以后每隔2000h换油一次 | 长城牌L-CKD 220 |
2 | 行星轴 | 每月加油一次 | 3#锂基脂 |